Skip to content
Haus Aspel
Gebäudestruktur
Bildergalerien
Haus Aspel
Das denkmalgeschützte Gebäudeensemble in Rees
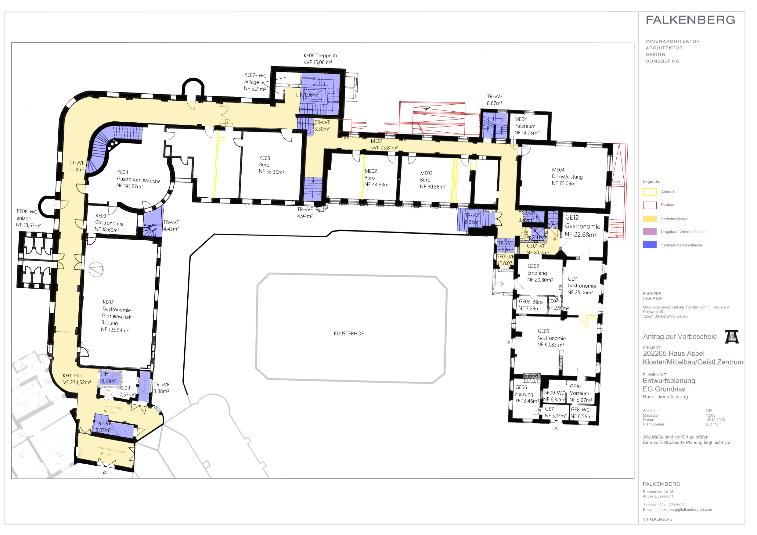
Grundrisse
Vision Zukunft
Kontakt
ENTWURFSPLANUNG KLOSTER
Wohnen, Bildung, Gastronomie